Travaux d'aménagement du bourg
Soucieuse d’améliorer le cadre de vie de ses habitants, la commune de BARDOS a effectué des travaux d’aménagement et de mise en accessibilité PMR des espaces publics dans le centre bourg en 2019.
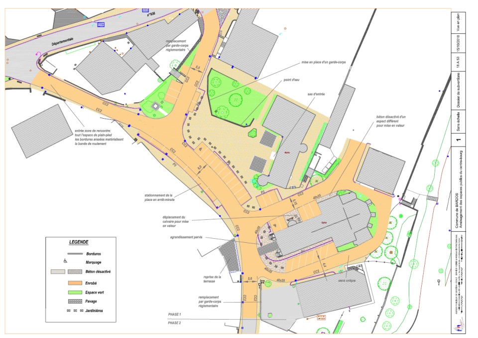
Aménagement des espaces publics de la R
D 936 à l’église

Aménagement des espaces publics de l’église au mur à gauche

Aménagement d'un cheminement piéton & d'un chaussidou le long de la route de Guiche
Dans le cadre de sa politique d’amélioration des mobilités douces et de sécurisation des voiries, la commune de Bardos, en collaboration avec le Conseil Départemental 64, a effectué des travaux d’aménagement visant à créer un cheminement piéton et un chaussidou au droit de la RD 253 dite route de Guiche, entre le chemin de Mondon et la RD 936. Cet aménagement s'inscrit dans une démarche de développement durable, en cohérence avec les objectifs de transition écologique portés par la municipalité : réduction de l’usage de la voiture, incitation aux modes de déplacement doux et valorisation du cadre de vie.
Qu’est-ce qu’un chaussidou ?
Le chaussidou (ou chaussée à voie centrale banalisée) est une chaussée étroite, avec une voie centrale partagée entre les véhicules motorisés dans les deux sens, et deux accotements revêtus de chaque côté pour les cyclistes. C’est un aménagement simple, efficace et reconnu pour sa capacité à mieux cohabiter entre automobilistes et cyclistes, en particulier dans les zones semi-urbaines ou rurales.
Comment circuler sur un chaussidou ?
Pour les automobilistes :
- La voie centrale est partagée par les véhicules circulant dans les deux sens
- En temps normal, les véhicules roulent au centre de la chaussée.
- Lorsqu’un véhicule arrive en sens inverse, chacun se décale momentanément sur les accotements latéraux, en veillant à ne pas gêner les cyclistes.
- Il est interdit de rouler durablement sur les bandes latérales (réservées prioritairement aux cyclistes).
Pour les cyclistes :
- Les bandes latérales sont conçues spécifiquement pour les vélos : elles assurent un espace sécurisé de circulation.
- Les cyclistes y circulent dans leur sens de déplacement, comme sur une piste cyclable.
- Les voitures doivent respecter la priorité et la sécurité des cyclistes en cas de croisement.
Bon à savoir :
Le chaussidou n’est ni une piste cyclable, ni une voie séparée : c’est un aménagement partagé.
La vigilance et le respect mutuel entre usagers sont essentiels pour assurer la sécurité de tous.
Une signalisation verticale et horizontale (panneaux, marquages au sol) vous aidera à identifier le chaussidou et à adopter les bons comportements.
En parallèle,un cheminement piéton sécurisé a été aménagé le long de la voie afin de permettre aux riverains, promeneurs et enfants, de circuler en toute tranquillité pour se rendre au centre bourg, à l’écart du trafic automobile.
Aménagement d'une piste cyclable le long de la route de Bayonne
L'aménagement en 2025 d'une piste cyclable sur la RD 936 dans la partie comprise entre l’allée de Panfilia et l’alimentation VIVAL, est venu répondre au besoin d'apporter une solution rassurante et sécurisante sur un axe majeur de déplacement (6900 véhicules/jour) aux cyclistes, ainsi qu’aux piétons et coureurs, permettant par la même occasion de sécuriser la connexion piétonne et cycliste des résidences ALDAPA et OYANA au centre bourg via la voie de Panfilia.



Arrêtés de circulation
Télécharger l'arrêté permanent portant règlementation de la circulation (pdf - 243Ko)